Përmbledhje
- Data ndryshimit:
- 24 Dhjetor, 2025
- ID e pronës
- 38647
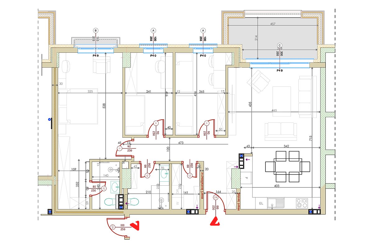
- 121.32 m2
- 4 Dhoma
- 3 Dhoma gjumi
- 2 Banjo
Përshkrimi
Banesa me sipërfaqe 121.32m² ndodhet në kompleksin “Albanica Residence”, në lagjen Prishtina e Re.
Kompleksi disponon sistem hotelier me recepsion, lavanderi, mirëmbajtje dhe siguri 24/7, si dhe infrastrukturë shumë të mirë me gjelbërim, kënde lojërash dhe parking të mjaftueshëm.
Banesa është e pajisur me pompë termike individuale MIDEA për ngrohje dhe ftohje nën dysheme, dyer të brendshme klasike 20cm më të larta se standardi, dritare M-Technology me tre shtresa xhami (antracit jashtë, të bardha brenda), instalime elektrike HAGAR, sistem alarmi, kamera, sensorë dhe videofon nga ALHUA, si dhe hidroizolim me Sika Plan. Muret ndërmjet banesave janë me trashësi 38cm, ndërsa muret e jashtme 25cm.
Banesa ka këtë renditje: Qëndrimi ditor | Kuzhinë | 3 Dhoma gjumi (njëra Master Bedroom) | 2 Banjo (njëra në Master Bedroom) | 1 Depo | 1 Ballkon.
Ndodhet në një zonë në zhvillim, në një lokacion tejet të përshtatshëm dhe të qetë për banim.







